Live in Person at Lake Como Borough Hall at 7:30
Same night as Belmar’s meeting
Click for their Agenda

Welcome to The Belmar Blog
Live in Person at Lake Como Borough Hall at 7:30
Same night as Belmar’s meeting
Click for their Agenda

Yes Vote on both items
When there is info on the Executive Session, it will be posted here.
At this meeting they will
Review the Ordinance Amending the Seaport Redevelopment Plan again,
and there is one application.
Click for the Ordinance 2022-02
Meeting is IN PERSON at Borough Hall at 7pm

Application is for this house at 303 Tenth Ave to be demolished,
the property divided into two lots, with a new single family house on each lot.

303 10th Ave Application
303 10th Ave Development Plan
303 10th Ave Subdivision Plan
This Meeting is ZOOM at 6:30
This meeting can be accessed through the following link:
https://us02web.zoom.us/j/81471531413
Passcode: 9566249
Or One tap mobile: US: +13126266799,,81471531413#,,,,*9566249# or +16465588656,,81471531413#,,,,*9566249#
Or Telephone: Dial(for higher quality, dial a number based on your current location):
US: +1 312 626 6799 or +1 646 558 8656 or +1 301 715 8592 or +1 346 248 7799 or +1 669 900 9128 or +1 253 215 8782
Webinar ID: 814 7153 1413
Passcode: 9566249

Resolutions
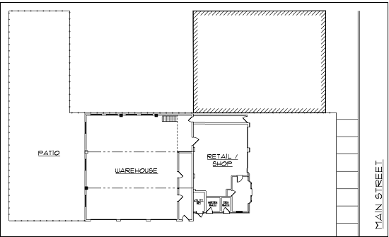
Ordinances – No. 2022-03 at 1200 Main is the Belmar Auto Property
Lake Como Council Meeting – Same night at 7:30
Click here for Zoom Info – Scroll down past Snow Info
I remember reading about the Marine Mammal Stranding Center and its Director,
Robert Schoelkopf, when we were both young.
I visited their facility in Brigantine with my son about 15 years ago.
They have a dedicated staff and do amazing work.
Click here for the Marine Mammal Stranding Center Website
Click for Facebook www.facebook.com/njmarinemammal

>/center>